Kaufpreis:
320.000,00 €
Informationen für Objekt ID 1369
Baujahr:
1922
Endenergiebedarf: 361.9 kWh/(m²a)
Zustand: GEPFLEGT
Wohnfläche: 196.0 m²
Heizungsart: ZENTRAL
Befeuerung: OEL
Anzahl Zimmer: 6.0
Energieeffizienzklasse: H
Grundstücksfläche: 885.0 m²
Nutzungsart: WOHNEN
Provision/Courtage: keine zusätzliche Käuferprovision
Endenergiebedarf: 361.9 kWh/(m²a)
Zustand: GEPFLEGT
Wohnfläche: 196.0 m²
Heizungsart: ZENTRAL
Befeuerung: OEL
Anzahl Zimmer: 6.0
Energieeffizienzklasse: H
Grundstücksfläche: 885.0 m²
Nutzungsart: WOHNEN
Provision/Courtage: keine zusätzliche Käuferprovision
Anbieter
Beschreibung
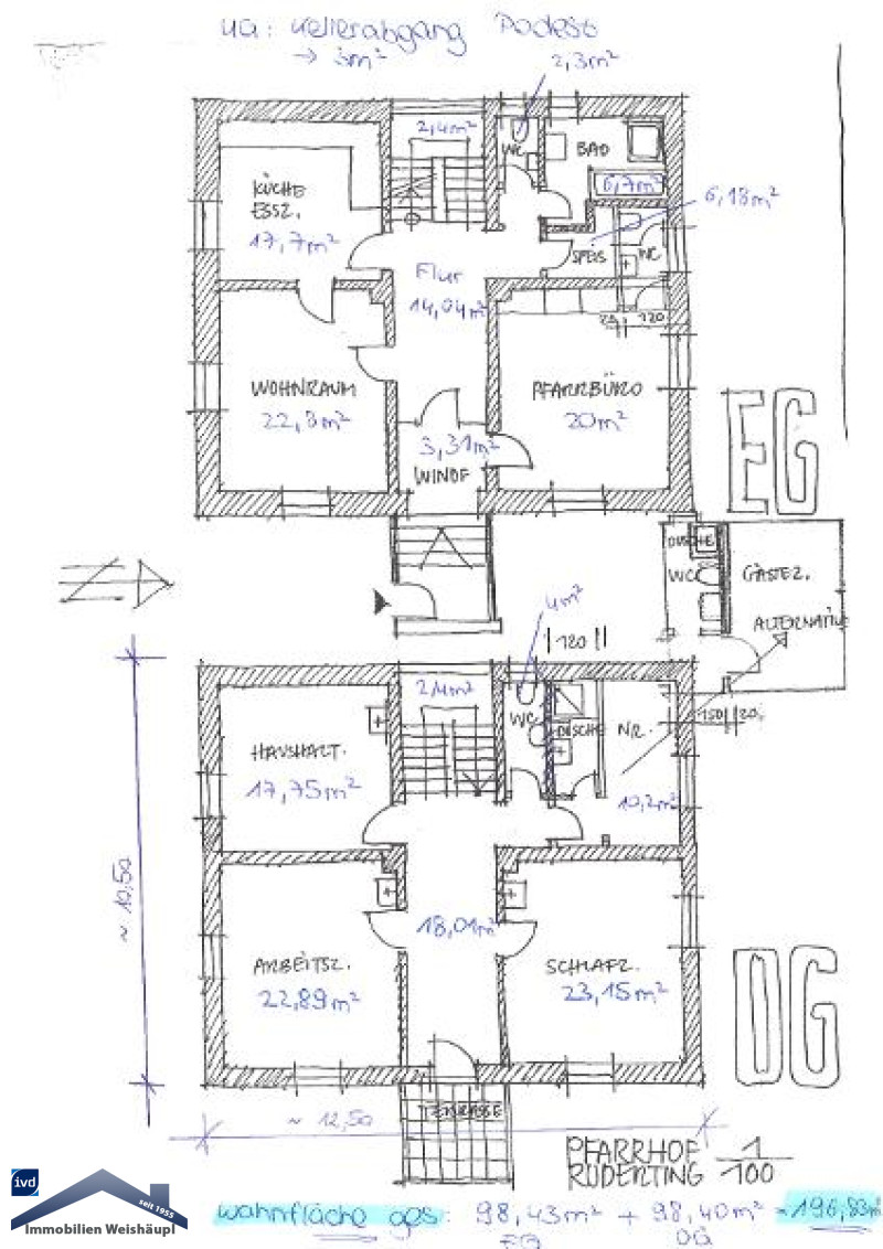
Dieses Wohnhaus mit viel Platz und Lebensraum befindet sich mitten in Ruderting auf einem ebenen und voll erschlossenen Grundstück mit viel Grün und alten Obstbäumen. Ursprünglich genutzt als Pfarrhof, mit Teilkeller, EG, OG und teilausgebautem DG wurde es in den Folgejahren als Wohnhaus mit Büro genutzt. Eine umfassende Sanierung mit Fassade, Fenster, Dacheindeckung fand in den Jahren 1997 bis 2000 statt. Die oberste Geschoßdecke ist bereits isoliert. Durch die zwei Eingänge entstehen viele Nutzungsmöglichkeiten vom geräumigen Wohnhaus mit ELW oder Büro bis zum 2-Familienhaus. Schöne hohe Räume erzeugen Wohlfühlambiente. Es stehen 6 Zimmer und zwei Bäder zur Verfügung, davon ist eines im OG renoviert. Raumaufteilung: EG WF gefliest 3,31m², Diele gefliest 14,04m² mit schöner Holzpodesttreppe in das OG, Büro re. Parkett 20m² m. Abstellraum 6,18m², sep.WC 2,3m², Bad alt m.Dusche, WB, Wanne und WM-Anschluss 6,7m², Wohnküche 17,7m², Wohnen mit Parkett 22,8m². OG: Podest 2,4m² (Treppe), Diele 18,01m², Schlafzimmer 23,15m², Wohn/oder Schlafzimmer 22,89m², Zimmer 17,75m², Bad mit Dusche und WC 4,m², Küche mit Einbauküche 10,2m². DG: ein Zimmer mit Fenster 24m². Im Teilkeller zwei Räume ist die Heizung mit Tank untergebracht.
Zusatzinformationen
Baujahr
1922
Endenergiebedarf
361.9 kWh/(m²a)
Zustand
GEPFLEGT
Wohnfläche
196.0 m²
Heizungsart
ZENTRAL
Befeuerung
OEL
Anzahl Zimmer
6.0
Energieeffizienzklasse
H
Grundstücksfläche
885.0 m²
Nutzungsart
WOHNEN
Provision/Courtage
keine zusätzliche Käuferprovision
Orte
Ruderting
, 94161
, 94161




